Durrnäsvägen 32 B 110-206
- Trumbäcken
- Sök lägenhet
- Piteå
- Durrnäsvägen 32 B lgh 110-206

Durrnäsvägen 32 B lgh 110-206
Om lägenheten:
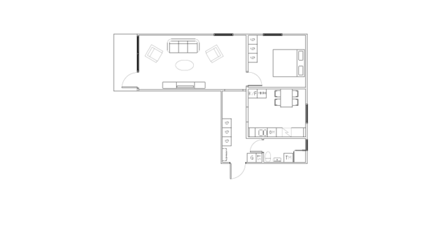
Välkommen till denna trevliga premiumtvåa på på Durrnäs. Lägenheten ligger på våning 1 vilket innebär trappsteg upp och hiss finns inte i huset. En välplanerad tvåa som är ljus & öppen, och här finns bra med förvaring, rymligt vardagsrum som möjliggör flexibla möbleringar som exempelvis kontor, lekhörna. Lägenheten har en inglasad balkong, vilket förlänger sommarmånaderna samt ger ett extrautrymme.
Lägenhetskoncept – Premium
Lägenheten är av kategorin Trumbäcken Premium – ”Nyproduktion i ett äldre skal”. I en premiumlägenhet har du alltid ett modernt kök och badrum. Vi installerar säkerhetsdörr mot trapphuset och nya innerdörrar. Alla väggar är målade och nya parkettgolv eller vinylklick har lagts in i alla rum. För att få till ett fräscht inomhusklimat är oftast även FTX-ventilation installerat till alla rum i lägenheten. I en premiumlägenhet finns alltid
– Diskmaskin
– Spis med varmluftsugn
– Inbyggd mikrovågsugn
– Tvätt och torkmöjlighet
Om området:
På Durrnäs har du nära till det mesta, till centrum är det ca 1,5 km vilket gör att du är där på bara 6 minuter på cykel! Även skola, förskola, sjukvård och matbutiker finns i närheten, Coop Strömlida ligger endast ca 1,2km från området. Ett stenkast från Durrnäs ligger Nordlunda idrottsplats.
På området finns en fin aktivitetspark för stora och små samt stora och fina grönytor. Två av tvättstugorna är nyligen renoverade med automatiska doseringssystem. Till varje lägenhet finns ett förråd i samma byggnad och du som hyresgäst har även möjlighet att nyttja bastu och kvarterslokal. Carportar finns på området med en separat kö och det finns goda parkeringsmöjligheter. Även laddstolpar för elbilar finns. Paketboxar finns på området.
Vad ingår i hyran?
I hyran ingår värme, varmvatten, kallvatten, Kabel-TV och internet. Kostnad för hushållsel och eventuell parkering tillkommer.
Uthyrningspolicy
För vår uthyrningspolicy klicka här
Övrigt
Lägenheten publiceras till och med den 15/11. Tilldelning av lägenheten kan starta innan sista publiceringsdag, så anmäl ditt intresse redan idag!
För fler bilder se bildspelet nedan. Klicka på pilarna vid övre/höger sidan av bilden nedan.
Antal rum
2 rum och kök
Kvadratmeter
64.9 m2
Hyra
9038 kr/mån
Ort
Piteå Durrnäs
Objektnr
110-206
Våningsplan
Våning 1
Tillgänglig fr.o.m.
2026-02-01








NEARBY 2: Array ( [0] => Array ( [name] => Durrnäsvägen 32 B lgh 110-206 [location] => Array ( [address] => Durrnäsvägen 32B, Piteå, Sverige [lat] => 65.3079961 [lng] => 21.5099652 [zoom] => 14 [place_id] => ChIJbVVd9rgXf0YR-OxQbG6O804 [name] => Durrnäsvägen 32B [street_number] => 32B [street_name] => Durrnäsvägen [city] => Piteå [state] => Norrbottens län [post_code] => 941 40 [country] => Sverige [country_short] => SE ) ) )
Se lägenheten på kartan
Durrnäsvägen 32 B lgh 110-206
Anmäl intresse
Liknande lägenheter
2 rum – 54 M2

Prästgårdsgatan 75 A lgh 142-6
8434 kr/mån
Centrum Tillgänglig FR.O.M: 2025-10-15
2 rum – 68 M2

Furubergsvägen 8 A, Lgh 120-39
9295 kr/mån
Furuberget Tillgänglig FR.O.M: 2025-12-01
2 rum – 56.6 M2

Durrnäsvägen 18 A, lgh 110-50
8449 kr/mån
Durrnäs Tillgänglig FR.O.M: 2025-12-01